PRODUCT
產品世界
我們擁有40多種國際化標準產品
PRODUCT
產品世界
我們擁有40多種國際化標準產品
產品概述:
WHWS(P)系列污水提升設備是專門處理無法依靠自身重力排至市政排污管道的高效節能一體化地下污水解決方案。廣泛應用于高檔別墅、地鐵站、民用建筑、大型工礦等無法依靠污水自身重力的排污場所。本產品具有智能化程度高、占地面積小、密閉的箱體結構無異味散發,安裝使用方便等特點廣受客戶的歡迎。我公司根據客戶的需求分別設計WHWP不銹鋼型污水提升設備和WHWS工程塑料型污水提升設備。
使用條件:
·采用PLC(可編程控制器)控制技術
1、大大增強和提高了控制系統及設備運行的穩定性和可靠性,完全實現無人操作運行;
2、實現雙泵交替運行、低液位停泵、高液位啟動水泵等功能、還可進行水泵故障,斷相和相序錯誤保護、運行故障等警報;
·智能化修復故障、多點報警指示
1、當出現地下室污水量異常、超大雜物堵塞主管路、設備坑積水和動力電源相錯相等異常情況時,控制系統可檢測識別,并轉入異常情況,自動修復運行狀態,只有在不能自我修復后自動報警指示。
2、單泵自動運行狀態——單泵故障自動切換
水泵故障時,程序會自動將設備轉入“單泵自動運行狀態”;當水泵修復、熱保護復位后,系統會自動恢復“雙泵自動交替運行”的狀態;
3、當地下室設備積水坑出現積水或電源缺相相錯相等異常情況時,控制系統可檢測識別,并轉入異常情況自動報警指示;
4、設備可實現現場自動、手動控制轉換
設備可配置不銹鋼電子液位傳感器。液位傳感器設有“起泵液位”、“停泵液位”兩個水設備可配置不銹鋼電子液位傳感器具有耐腐蝕、動作可靠、靈敏度高、壽命長、安裝簡單、不易磨損腐蝕的優點。通過電極感應反饋的信號,準確的控制2臺水泵交替運行,避免了由于纏繞、遮擋等原因造成控制失誤而導致污水外溢等情況發生。
·實現遠程監視操作
可通過BAS數據線,將用戶要求的設備運行狀態的各類信號傳遞到監控室,使值班人員足不出戶在監視屏上直觀了解和操作設備運行狀態;用戶也可將設備運行狀態通過互聯網同步顯示在總控制室計算機上,使售后服務人員準確判斷各類異常情況,指導用戶及時維護,為用戶提供全方位的技術支持和服務,極大降低了設備的管理成本。
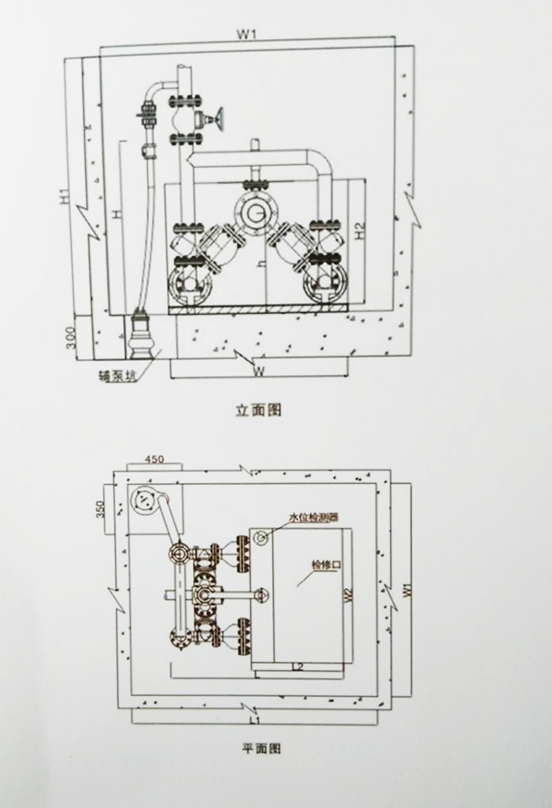
結構特征和工作原理:
帶地下室的高層生活建筑的生活污水排放;
地下商場、餐廳、浴室等商業服務性場所的污水排放;
地鐵、地下過街通道等的污水排放;
人防工程的污水排放;
| 序號 | 零件名稱 | 數量 | 材質 |
| 1 | 控制柜 | 1 | 組合件 |
| 2 | 水箱 | 1 | PE |
| 3 | 切割泵 | n | 泵體鑄鐵 |
| 4 | 進水管路 | 1 | PVC |
| 5 | 出水管路 | 1 | PVC |
| 6 | 耦合裝置 | n | HT150 |
| 7 | 污水專用止回閥 | n | 組合件 |
| 8 | 液位浮球 | 1 | 組合件 |
輔泵:
1、特征
在污水提升設備所在的環境中易出現滲水等情況時,建議客戶在污水提升設備旁增加輔泵,以保護設備安全。
2、輔泵選型
輔泵揚程應與主泵揚程一致
當Q主<15m3/h時,Q輔=Q主
當Q主≥15m3/h時,10m3/h≤Q輔≤20m3/h
也可根據用戶的實際情況進行選型。
注:帶輔泵設備配置污水提升設備專用控制柜。
型號意義:

1、內置式安裝示意

2、外置式安裝示意
